4 pokoje | po remoncie | komórka | metro

Mieszkanie na sprzedaż
1 199 000,00 PLN , Pow. 73 m2
Drukuj ofertę
Drukuj ofertę
Typ nieruchomości:
Mieszkanie
Powierzchnia:
73 m2
Typ transakcji:
sprzedaż
Liczba pokoi:
4
Lokalizacja:
Warszawa Bemowo , Lajosa Kossutha
Rok budowy:
1978
Piętro:
5 na 10
Numer oferty:
PEMS-885455
Cena za m2:
16 424,66 PLN
Biuro nieruchomości Pure Estates ma przyjemność zaprezentować 4-pokojowe mieszkanie na warszawskim Bemowie przy ul. Kossutha.

Nieruchomość znajduje się na 5 piętrze w 10 piętrowym budynku.

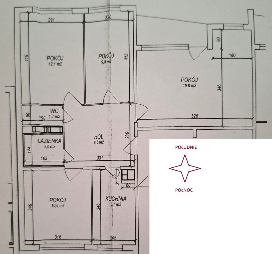
Na powierzchnię 73m2 składa się:

- salon 19,8m2
- kuchnia 5,7m2
- sypialnia 12,1m2
- sypialnia 10,9m2
- sypialnia 9,5m2
- łazienka 2,6m2
- wc 1,7m2
- korytarz 9,5m2

Rozkładowe mieszkanie z eskpozycją północ-południe. W 2020 roku został wykonany generalny remont. Zostały położone nowe instalacje hydrauliczne i elektryczne, wylewki, gładź na ścianach. Zostały założone nowe parapety, nowe okna PCV i drzwi, w tym drzwi wejściowe. W mieszkaniu do dyspozycji pozostanie zabudowa kuchenna robiona na wymiar oraz wysokiej jakości sprzęty AGD (Bosch i Samsung). W łazienkach zostają również pralka i suszarka bębnowa. Mieszkanie było remontowane pod nas (właścicieli), bez kompromisów i bez oszczędzania na materiałach i sprzętach.

Możliwość przydział  sp miejsca na parkingu społecznym.

Blok jest po modernizacji instalacji elektrycznej i gazowej, ocieplony. Ulokowany na zielonym osiedlu, z dużymi odległościami między blokami. Blok jest otoczony pasem zieleni, nie ma sąsiadów zaglądających w okna.

W bezpośrednim sąsiedztwie znajdują się: Biedronka, Delikatesy Centrum, lodziarnia, Rossmann, apteka DOZ, Szkoła Podstawowa i przedszkola oraz przychodnia na Czumy oraz Park Górczewska.
W obrębie ulicy Górczewskiej i stacja Metra Bemowo (linia M2) znajdują się: Lidl, Carrefour, Pepco, Weterynarz, różne lokale usługowe i gastronomiczne.

Serdecznie zapraszam do kontaktu oraz prezentacji nieruchomości w dogodnym dla Państwa terminie.
Nieprawidłowy adres E-mail