Wawer | 4 pokoje | ogródek | segment | garaż

Mieszkanie na sprzedaż
1 420 000,00 PLN , Pow. 101 m2
Drukuj ofertę
Drukuj ofertę
Typ nieruchomości:
Mieszkanie
Powierzchnia:
101 m2
Typ transakcji:
sprzedaż
Liczba pokoi:
4
Lokalizacja:
Warszawa Wawer , Ogrody
Rok budowy:
2018
Piętro:
0 na 2
Numer oferty:
PEMS-944281
Cena za m2:
14 059,41 PLN
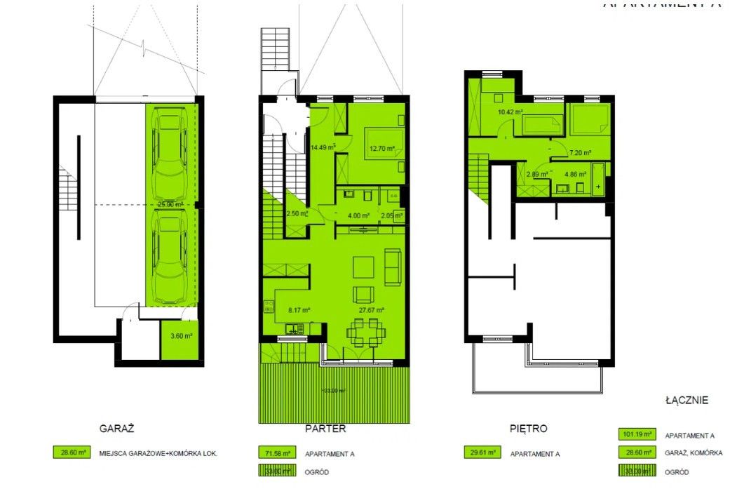
Biuro Nieruchomości Pure Estates prezentuje 4 pokojowe mieszkanie w narożnym segmencie z garażem 28,60 m2 w bryle budynku.

Budynek wybudowany w 2018 roku na kameralnym, zamkniętym osiedlu w zielonej części Warszawy. Świetna lokalizacja - spokojna okolica z szybkim dojazdem do centrum.

Cechy mieszkania:
* Dwupoziomowy układ - wyraźny podział na część dzienną i nocną.
* Salon z aneksem kuchennym  35,84 m2- przytulne i funkcjonalne serce domu.
* Ogrzewanie podłogowe na parterze
* Dwie pełne łazienki na piętrze + toaleta na dole - wygoda dla całej rodziny.
* Własny ogród 60 m2 - miejsce na relaks i rodzinne spotkania. 
* Garaż w bryle budynku - komfort i bezpieczeństwo i 3 m2 komórka lokatorska.

W skład 101 m2 nieruchomości wchodzą:
Parter w sumie 71,58 m2
- salon z aneksem kuchennym 
- pokój 12,70 m2
- łazienka 6 m2 prysznic z odpływem liniowym

Piętro w sumie 29,61 m2
- pokój 10,42 m2
- pokój 7,20 m2
- łazienka 4,86 m2 z wanną
- garderoba 2,89 m2

Media:
Mieszkanie bezczynszowe, opłaty według zużycia: Nieruchomość wyposażona w piec gazowy dwufunkcyjny, kanalizacja, wodociąg.

Komunikacja i otoczenie:
Nieruchomość zlokalizowana na terenie cichej dzielnicy Wawer (na granicy z Gocławiem), w odległości 1 km od Trasy Siekierkowskiej - 250 m od Wału Miedzeszyńskiego.
Dogodny dojazd - komunikacją miejską 600 m do przystanku autobusowego, linie 119, 146,147, 213, N72 i samochodem - do Centrum miasta (ok 9 km), do Saskiej Kępy (4km).

W pobliżu znajduje się szkoła podstawowa i przedszkole ( ok 200 m) oraz duża sieć sklepów Aldi, Biedronka, piekarnia z kawiarnią. 

Status prawny: Pełna własność - można posiłkować się kredytem.

Zachęcam do umówienia prezentacji w dogodnym terminie. 


Nieprawidłowy adres E-mail