Wilanów | 4 pokoje | taras | ogród | ostoja

Mieszkanie na sprzedaż
2 520 000,00 PLN , Pow. 128 m2
Drukuj ofertę
Drukuj ofertę
Typ nieruchomości:
Mieszkanie
Powierzchnia:
128 m2
Typ transakcji:
sprzedaż
Liczba pokoi:
4
Lokalizacja:
Warszawa Wilanów , Prymasa Augusta Hlonda
Rok budowy:
2009
Piętro:
0 na 4
Numer oferty:
PEMS-566833
Cena za m2:
19 687,50 PLN
Biuro nieruchomości Pure Estates ma przyjemność zaprezentować apartament na osiedlu Ostoja Wilanów z 2 tarasami, ogrodem i ogrodem zimowym.

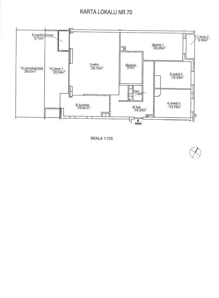
Apartament o powierzchni 127,95 m2 znajduje się na parterze w Ostoi Wilanów.

UKŁAD APARTAMENTU:

- Pokój 20,28 m2
- Pokój 12,43 m2
- Pokój 13,74 m2
- Łazienka 9,52 m2
- WC 1,84 m2
- Przedpokój 18,33 m2
- Salon z kuchnią i jadalnią (open space)
- Ogród zimowy 2,73 m2
- Taras 20,54 m2 -
- Ogródek 36,57 m2
- Taras2 2,80 m2

IBudynek z 2009 roku.
Na piętrze znajdują się 3 lokale mieszkalne. Budynek o wysokim standardzie wykończenia, na klatkach kamień naturalny, zadbane części wspólne (patio, plac zabaw). O bezpieczeństwo mieszkańców dba monitoring i ochrona.

Nieruchomość znajduje się na cieszącym się doskonałą opinią - osiedlu Ostoja Wilanów, przy ulicy Augusta Prymasa Hlonda 2A w sercu Miasteczka Wilanów. Świetnie skomunikowane: przystanek autobusowy oraz przystanki tramwajowe. W pobliżu znajdują się liczne sklepy (np. Auchan, Lidl, Biedronka, Rossmann, Hebe, piekarnie) placówki edukacyjne, w tym szkoły i przedszkola międzynarodowe: British School, Willy-Brandt-Schule, American School of Warsaw, Szkoła Europejska. Dojazd do centrum Warszawy samochodem zajmuje ok. 20 min. Niedaleko znajduje się również wjazd na obwodnicę Warszawy


Do nieruchomości przynależą 2 samodzielne miejsca parkingowe o wartości 100000 zł w podziemnym garażu, które są dodatkowo płatne.

Apartament  gotowy do wprowadzenia, dostępny od zaraz. 

Serdecznie zapraszam do kontaktu oraz prezentacji nieruchomości w dogodnym dla Państwa terminie.



Nieprawidłowy adres E-mail