Włochy | 4 pokoje | komórka | garaż

Mieszkanie na sprzedaż
1 390 000,00 PLN , Pow. 80 m2
Drukuj ofertę
Drukuj ofertę
Typ nieruchomości:
Mieszkanie
Powierzchnia:
80 m2
Typ transakcji:
sprzedaż
Liczba pokoi:
4
Lokalizacja:
Warszawa Włochy , Obywatelska
Rok budowy:
2013
Piętro:
1 na 2
Numer oferty:
PEMS-240682
Cena za m2:
17 375,00 PLN
Biuro nieruchomości Pure Estates ma przyjemność zaprezentować przestronne 4 pokojowe mieszkanie idealne dla rodziny na warszawskich Włochach. 


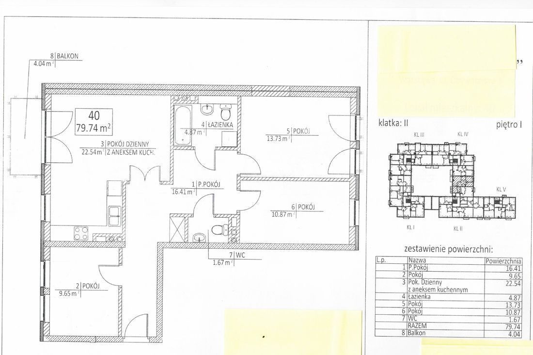
4-pokojowe mieszkanie o funkcjonalnym rozkładzie, powierzchnia całkowita 79,74 m², położone w spokojnej części miasta.


Układ:

Salon z aneksem kuchennym z wyjściem na balkon 

3  niezależne pokoje

Przedpokój z pojemną zabudową

Łazienka

oddzielne wc

Na podłogach: w kuchni, przedpokoju i łazienkach - klasyczne i funkcjonalne płytki, w salonie oraz pokojach panele, Nowoczesna kuchnia w zabudowie pod sufit, z eleganckim designem, czarnym zlewem i zabudowanymi sprzętami AGD (piekarnik, płyta indukcyjna). Mieszkanie wymaga  odświeżenia.

Mieszkanie dwustronne dobrze doświetlone.

Do mieszkania przynależy duża piwnica, zapewniająca dodatkowe miejsce do przechowywania oraz miejsce postojowe w hali garażowej.

Na osiedlu znajduje się kort tenisowy, boisko do koszykówki, piłki nożnej place zabaw.

Serdecznie zapraszam do kontaktu oraz prezentacji nieruchomości w dogodnym dla Państwa terminie.
Nieprawidłowy adres E-mail