Wysoki Standard | Cicha Okolica | Wola | Odolany

Mieszkanie na sprzedaż
1 520 000,00 PLN , Pow. 68,07 m2
Drukuj ofertę
Drukuj ofertę
Typ nieruchomości:
Mieszkanie
Powierzchnia:
68,07 m2
Typ transakcji:
sprzedaż
Liczba pokoi:
3
Lokalizacja:
Warszawa Wola , Stanisława Worcella
Rok budowy:
2018
Piętro:
1 na 6
Numer oferty:
PEMS-491438
Cena za m2:
22 329,95 PLN
Biuro nieruchomości Pure Estates ma przyjemność zaprezentować mieszkanie na warszawskiej Woli.

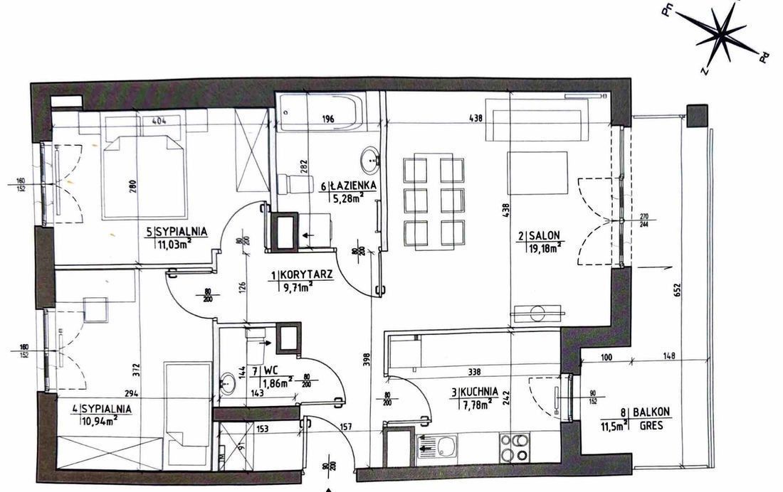
Mieszkanie o powierzchni:
68.07 m2 znajduje się na 1 piętrze i składa się z:
- Kuchni otwartej na salon (ok. 7.78 m²)
- Salonu (ok. 19.18 m²)
- Sypialni (ok. 11.03 m²)
- Sypialni (ok. 10.94 m²)
- Łazienki (ok. 5.28 m²)
- Toalety (ok. 1.86 m²)
- Korytarza (ok. 9.71 m²)

Mieszkanie w wysokim standardzie, gotowe do wprowadzenia się bez ponoszenia dodatkowych kosztów. Lokal jest ustawny, z funkcjonalnym układem pomieszczeń zapewniającym komfort codziennego użytkowania. Nieruchomość znajduje się na zamkniętym osiedlu w cichej, zielonej okolicy, z dostępem do dwóch placów zabaw oraz siłowni, co sprzyja aktywnemu trybowi życia i wygodzie mieszkańców.

W najbliższej okolicy dostępne są liczne lokale usługowe, a w około 15 minut spacerem można dotrzeć do centrum handlowego Fort Wola, gdzie znajdują się sklepy, restauracje oraz punkty usługowe, umożliwiające wygodne załatwienie codziennych spraw i zakupów. Dodatkowym atutem jest bliskość terenów zielonych - w pobliżu znajdują się trzy duże parki: Park Powstańców Warszawy, Park Sowińskiego oraz Park Szymańskiego, które oferują przestrzeń do spacerów, rekreacji i odpoczynku na świeżym powietrzu.

Lokalizacja zapewnia bardzo dobrą komunikację - w pobliżu kursują liczne linie autobusowe i tramwajowe. Dojazd do centrum miasta zajmuje około 20 minut samochodem lub około 35 minut komunikacją miejską.

Mieszkanie idealnie sprawdzi się dla singla, pary, pary z dzieckiem, a także jako nieruchomość pod dalszy najem.

Do mieszkania przynależy miejsce postojowe w hali podziemnej (dodatkowo płatne 45 000 PLN)  

Stan Prawny: Pełna Własność

Serdecznie zapraszam do kontaktu oraz prezentacji nieruchomości w dogodnym dla Państwa terminie.

Nieprawidłowy adres E-mail